Back to Home Page of CD3WD Project or Back to list of CD3WD Publications

5. Packing house

Contents - Previous - Next

5.1. Need for a packing house

Field preparation and packaging of produce is possible for only a limited number of crops, and for particular markets. After harvest most horticultural crops must be cleaned, sorted, sized and usually packaged if they are to be sold in the fresh produce market. Usually these procedures take place in packing houses of different types, be it a small thatched shelter on the edge of the field, or a large packing with automated equipment.

Packing houses serve as a sheltered working site for the produce and the packers, and should create an orderly assembly and flow of produce which can be well managed and centrally supervised. They may also provide a storage point for packing equipment and materials and, if large enough, can house office and communications facilities. Packing houses tend to become focal points for the local horticultural industry and centres of information, and if properly designed, can be utilised for packing of different commodities in different seasons. For export of fresh produce, packing houses are an essential part of the operation where selection, grading and quality control must be disciplined.

The packing house design and facilities needed depend very much upon local infrastructure, types and quantities of produce, markets being served and the funds available. It is rare for two packing stations to be identical. The various factors which have to be taken into consideration when planning a packhouse include:

5.2. Packing house operations

The operations which are carried out in a packing house include some or all of the following:

(i) Receival

On arrival at the packing house, produce is usually counted or weighed and, in some cases, sampled for quality and labelled to identify the date and source.

Usually, the produce cannot be carried directly to the packing lines. It must be unloaded from the trailer or truck in such a way that it is easy to carry into the packing house and yet avoid damage to the produce. Palletised crates of produce are best unloaded mechanically with a fork-lift. Individual crates can be manually off-loaded onto a conveyor and routed direct to the packing line or to a temporary holding area.

(ii) Packaging

Packaging lines differ greatly according to the type and the quantity of the crop. They may consist of simple sloping tables (an example is shown in Figure 5.1. (see Figure 5.1. Simple inexpensive grading and packing table)) where produce is trimmed, cleaned, graded, sized and packed, and this sort of operation is perfectly acceptable for small quantities. For larger quantities of produce, specialized mechanical handling and preparation lines are more usual. However, even in a large packing house with full mechanization it is necessary to include a small simply equipped packing line for special lots of Produce.

The packing line may include the following operations:

  1. Supplying the packaging line --should be carried out so as to avoid damaging the produce. Hand removal onto a conveyor or table, or dumping into a tank of water causes least damage. Where mechanical handling is used, care must be taken to minimise dropheights (and hence bruising), to avoid hard surfaces and not to overload the line.
  2. Cleaning -- dry delivery systems, such as for citrus, onion and garlic, larger pieces of debris are removed by passing the produce over a graded griddle. Further cleaning is sometimes carried out with rotating dry brushes. Washing produce with water is more common, and since many types of produce float, the water makes a good transport system (e.g. banana). Some highly perishable produce, notably fruits should not come into contact with water. Orange and mango, however may be soaked and rinsed sufficiently clean, but soft rotating brushes may also be used for high-priced market fruit. For some commodities, the risk of cross-contamination in the washing tank is high (healthy produce infected by bad produce assisted by water), and it is often safer to wipe clean with a cloth (e.g. eggplant, sweet pepper). Produce may be allowed to dry naturally after washing, or dried artificially using air-blowers which are sometimes heated.
  3. Special treatments -- after washing, some crops receive special treatments to extend their storage and market life, or to make them more attractive to the consumer. For example, citrus is often waxed to reduce shrivelling and improve the fruits appearance. Mangoes may receive a hot water treatment and fungicide for anthracnose control. (see Section 9 for more details)
  4. Selection and grading -- almost all produce is graded and sized in the packing house to meet the quality and size standards of the market being served. Sorting to remove substandard produce and grading into different qualities is largely carried out manually. Sizing, according to weight, length or diameter is more often a mechanized process and for which a wide variety of equipment is available, much of it crop specific.
  5. Packing -- packing stations may supply produce to different buyers and markets, each having different quality and packaging requirements. Flexibility in packing methods and materials employed should therefore be built into the system, even though standardization of produce should lead to a reduction of the number of different packages.

(iii) Despatch

At the point of despatch, produce is handled in the condition that it will reach the buyer. It is therefore essential that rough handling, overloading of trucks, infestation and exposure to extreme weather conditions are kept to a minimum. The despatch area should be cool, clean and spacious to allow for temporary storage of packed produce and permit unrestricted movement of loading staff and their vehicles.

(iv) Storage

Depending on the commodities handled, packing houses may have adjacent facilities for long and short-term storage of packed produce. Some produce may be stored before preparation and/or after packing, as a normal function of the marketing process. Except where storage is a necessary part of the handling chain, the aim should be to move packaged produce out of the packing centre and to the buyer as quickly as possible.

5.3. Packing house equipment and facilities

Before considering the design features of a packhouse it is necessary to take an audit of what facilities and equipment will be needed for the packhouse, and what form and quantity of services will be needed for immediate purposes and any future expansion. The general facilities required for packing stations are described below.

  1. Water - all packing stations require large quantities of water for washing produce and possibly also for cooling (hydro-cooling) of produce, and facilities will be necessary for the delivery and disposal of this water. Where public supplies of water are unreliable, wells and storage must be considered. Where water is scarce, possibilities for recirculation and re-utilisation may exist, but it is important that attention be given to the sanitary quality of the water that comes into contact with the produce.
  2. Electricity - where any form of automation is employed and certainly where good lighting is needed, a source of electricity supply from mains or generator must be arranged. Even where there is mains supply, it is sensible to install reserve or emergency generators, and particularly if the packing houses has its own refrigerated store rooms.
  3. Waste disposal - it is important to separate waste and rejected produce from the fresh market line in order to restrict the spreading of post-harvest diseases. Waste, once separated should not be allowed to accumulate inside the packhouse or it will become a physical hindrance as well as a phytosanitary risk. Some of the waste could go for animal feed to help reduce costs of disposal.
  4. Material handling - good handling equipment and vehicles save much time and effort and can greatly reduce the damage to produce. Provision must be made for hand trolleys and roller conveyors, and, in bigger stations, for powered conveyors and fork-lift trucks. Where pallets are used they should be compatible with box sizes to achieve close to a 100% fit.
  5. Produce handling - an immense range of equipment is available for washing, conveying, brushing, waxing, grading, and packaging specific commodities. Suppliers and manufacturers specializing in post-harvest handling equipment in various countries can advise from past experience on complete handling lines to meet specific commodity needs.
  6. Storage facilities - many packing stations include refrigerated facilities for short-term storage of highly perishable commodities. A ventilated temporary storage area may be sufficient, however, for commodities which have a reasonable post-harvest life. The possibility of future expansion of the storage facilities must also be considered.

5.4. Location of the packing house

The location of a packing house depends on several objective criteria:

  1. Proximity to production area - a small field packhouse allows for easy supply and transport of produce with minimum delay. However, where a packing house serves a larger production area, it should be sited to allow good and rapid access for the producers. Where road facilities are poor, and production scattered, it is often better to have several smaller packing stations than one large central facility.
  2. Labour - a labour force sufficient for the needs of the packing house must be available in close proximity. Where this is not possible, it may be feasible to supply reliable transport or seasonal dwellings for the work force at peak employment times, but, this extra cost must be balanced by benefit.
  3. Services - the need for water and power facilities has already been mentioned above. In addition, access to communication facilities such as telephone lines is beneficial for rapid contact with producers and buyers.
  4. Site - a sufficient plot of land must be acquired to provide any increase in forecast production, or any change of commodity types, or market needs. The site should not be exposed unduly to wind, erosion or to periodic flooding.

5.5. Design of the packing houses

The packing house design should accommodate all those factors described above which are relevant to the specific needs of the operation being planned. The overall design should ensure that floor space is adequate for easy movement, doors are wide enough for passage of vehicles and pallets, storage areas are sufficient for packaging materials, all surfaces can be easily washed and drained, there is a relatively clean and quiet administration office and that the workforce have a clean area where they can wash and eat in reasonable comfort.

It is conventional to segregate a packing house into the three main activity areas of reception, preparation/packing, and despatch. Storage for produce and packaging materials has to be provided according to the needs.

  1. Crop reception area - this is frequently a dirty area and so should be clearly separated from the despatch point to prevent contamination of packed produce, but also to assist in segregation of incoming and outgoing transport vehicles. Overhead protection from the weather is useful and raised unloading bays may be an advantage if deliveries are from trucks. This can be more economically achieved by sloping down the approach area to below ground level rather than constructing the entire plant at a raised level.
  2. Crop preparation ant packing area - this should be dry, clean, well ventilated and welllit. Handling and packaging lines are traditionally linear in design but many variants are possible.
  3. Despatch area - this should be cool, clean and spacious to allow for temporary storage of packed produce and permit unrestricted movement of loading staff and their vehicles. Where a quality control programme is planned, an area adjacent to the dispatch area should be included in the design to facilitate these operations.

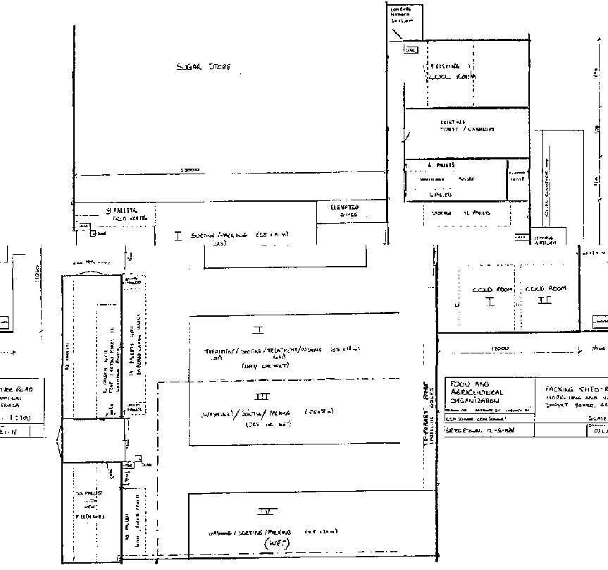
Figure 5.2. (see Figure 5.2. Proposed design and layout for a packhouse in Grenada) shows a proposed design and layout for a packhouse within an existing building in Grenada with initial requirements for a maximum of two packing lines, one for 'wet processing' of crops needing washing and dipping, and one for 'dry processing' of crops where water is not necessary nor advisable. However because of planned expansion, the design allows for two additional packing lines and supporting infrastructure. Figure 5.3. (see Figure 5.3. Proposed flow of produce through the grenada packhouse) indicates the proposed flow of produce through the packhouse from reception to storage prior to despatch.

Land for completely new packhouse building is scarce and becoming increasingly more difficult to obtain, and many organizations are likely to be faced with plot sizes and shapes which are difficult to adapt to the packing operations intended. Lack of funds may also mean that existing buildings will have to be adapted rather than demolished and a new building erected. It is important that designs for packhouses are kept as flexible as possible in case of changed needs for different crop types.

5.6. Construction of the packing house

A popular design for the larger scale of centralized packing house or station utilises the relatively cheap and easily available materials of concrete flooring and corrugated metal sheeting for walls and roof. For many location these materials prove economic and durable. However, where solar radiation and high ambient temperature combine, packing houses built of these materials rapidly turn into sweat-boxes which are uncomfortable for the work force and a serious hazard to the post-harvest life of the produce. It may be necessary therefore to incorporate into the design such features as sprinkler systems on the roof and electrically powered ventilation fans to dissipate the heat load. Often much of the heat load can be avoided by constructing the roof into tiers with clear spaces between to allow natural ventilation.

For the small-scale packing house, the use of very cheap and readily available natural materials, such as grass and rush thatching, is often over-looked. Although possibly not as durable as concrete and corrugated metal sheeting, these natural materials are much cheaper and easily renewable -- crucial factors to the small-scale producer with limited capital.

5.7. Management of the packing house

It is a sad fact of life that many packing stations, even though well supplied by good quality produce and well designed and located, have failed through lack of good management. In the case of the small producer who does his own packing, any deficiencies in management will be directly reflected in his own personal income. The small producer thus has a particular incentive to work harder at improving the efficiency of his packing operation. However, in the case of the larger packing house jointly owned by a co-operative or producers' association, the manager is more likely to be a salaried employee. Thus it is vital that great selectivity is applied when appointing a manager to ensure that they are capable of handling all the necessary operations, and are experienced in the management of a workforce such as packing house staff. It is equally important that the manager can communicate clearly and respectfully with both producers and buyers.

The job of the packing house manager is to maintain a smooth movement of produce from delivery areas through the handling and packing lines to despatch. Bottlenecks in the system invariably lead to damage and deterioration of the produce and are frequently caused by breakdown of machinery, or by the failure to match labour requirements with anticipated deliveries. Regular maintenance schedules for all equipment and training of staff to handle machinery and produce correctly should also be prepared to a adopt a flexible approach to operations, for example by switching operations to two short packing lines rather than one long single line when delays occur.

The period of operation of a packing house is often limited by the restricted growing season of crops and managers should be constantly looking for out-of-season commodities which can extend the operation and reduce the costs of the packing house.


Contents - Previous - Next