Back to Home Page of CD3WD Project or Back to list of CD3WD Publications

Methods of grain fumigation

Contents - Previous - Next

The differences between methods of grain fumigation are related primarily to the type of fumigant initially applied to the grain mass. Gas-tight structures that will retain a sufficient concentration of fumigant for the required period of time are essential for effective treatments. For the fumigant phosphine, gas tightness is particularly important because this gas can penetrate to escape much more easily and rapidly than other fumigants. The standard of gas tightness recommended by the Australian Committee on Agriculture (Winks et al, 1980) for fumigation with phosphine requires structures to be sealed so they can maintain an excess internal pressure from 500 Pa (2 in water gauge) to 250 Pa (l in water gauge) for not less than 5 minutes in filled structures of 300 to 10 000 tonnes capacity. The roofs of structures sealed to this standard must be painted white to reduce thermal expansion of the atmosphere within the headspace.

In the case of phosphine it is essential to maintain uniform concentrations for sufficient periods of time to kill all insects present; high dosage rates do not compensate for inadequate standards of gas tightness with this fumigant. The objective of the fumigation must be complete control of all stages of all species of pest so that resistance to the fumigant does not develop.

DIRECT MIXING (VERTICAL STORAGE)

By this method, the fumigant is applied to the grain so that it is distributed as evenly as possible from the beginning of the treatment. Direct mixing is often employed when infestation is general throughout the mass and when there is access to the grain stream during filling or transfer from one bin to another. Only solid or liquid-type fumigants are used in this way. Fairly even distribution of the gas with good control of the insects can usually be obtained.

The solid-type fumigants used for this treatment are aluminium phosphide tablets or pellets evolving phosphine and granular calcium cyanide evolving hydrogen cyanide. Aluminium phosphide tablets or pellets can be inserted in the grain stream by hand or with an automatic dispenser calibrated to deliver a dosage appropriate to the rate of loading in the bin (Figure 39). Calcium cyanide is usually discharged from an automatic applicator. Also, aluminium phosphide powder formulation in paper bags may be added to grain as bins or silos are filled. In this case, it is necessary to provide for removal of the bags after fumigation is complete.

A convenient method for applying bags of aluminium phosphide to grain in vertical storages involves a permanently installed system of pipe-, fixed vertically to the walls of the bins or silos (Anon, 1980). With this system the fumigant is applied in long narrow bags 22 x 6 cm, by hooking the bags to a chain at prescribed intervals and suspending them in the pipe. There are caps at both ends of the pilling system; the top cap is equipped with a coupling to retain the chain holding the fumigant bags and the bottom cap is threaded for easy cleaning of the pipe. Small portals in the piping permit the fumigant to diffuse out arid penetrate into the grain mass. This system eliminates the need for turning the grain to disperse the fumigant and allows easy removal of the bags of expended dust residue after the treatment. It should be noted that this system is not designed for tablets or pellets of aluminium phosphide and could be hazardous if high concentrations of the gas evolve in a confined space.

Liquids may conveniently be applied to the grain by means of ordinary watering cans with the sprinklers left on or by means of ordinary piping or tubing of not more than 1 cm (0.375 in) internal diameter. The required dosage for each lot of 1 000 bushels (36 m ) of grain may be applied from one sprinkler can to each lot as it passes on the heft. If necessary, by prearrangement with the weigher, there can be a one- or two minute break between 1 000 bushel drafts. This arrangement also enables the fumigator to keep a check on even application of the fumigant. In upright storages of grain, in order to ensure adequate distribution at the top and bottom of the mass, an extra dosage at the rate required for 1 000 bushels may be placed at the beginning of the run for the first 1 000 bushels and the same amount sprayed or sprinkled on the surface of the grain mass to control surface infestation.

Storage bins of the vertical type usually have manhole covers in the ceiling and these are usually closed immediately to prevent loss of fumigant. If there is no roof to the storage unit, the grain should be covered with a gasproof sheet of the type already described in Chapter 8.

For this work there are also available automatic applicators which apply the liquid continuously or intermittently. It should be pointed out that devices merely emptying drums with a preset discharge valve are inaccurate, because the pressure of the liquid above the valve varies from the time the container is full until it is almost empty, and a higher proportion of the dosages is therefore discharged into the grain at the beginning of the run. The only reliable automatic device is one employing a gear pump equipped with a bypass so that there is a constant pressure of the fumigant on the discharge orifice, the excess fumigant being returned to the drum. In this way, the fumigant is applied to the grain stream at a constant rate of discharge according to the dosage required.

Precaution. In the application of fumigants to grain streams, care should be taken that fumes are not inhaled. Liquid-type fumigants are especially hazardous because vapours may be given off before the grain enters the storage.

Warning. When grain fumigants are atomized or sprayed into closely confined spaces, or into a shallow space above the grain surface, the concentration of fumigant may exceed 2 percent by volume in air. Canister-type respirators will afford no protection under these conditions. It is better for the fumigator to remain outside and to apply the fumigant through an opening (see Chapter 3 Figure 8). If it is absolutely necessary for operators to enter such a space during fumigations, air-line or self-contained respirators should be worn.

As the grain enters vertical storage units, currents of air containing fumigant vapours may be forced up into the working space. Operators may therefore be exposed to fumes even when working outside the structure being treated. Under these circumstances, it may be necessary to wear respirators fitted with the proper canisters.

Many modern silos have windows running along either side of the head house, and these should be kept open whenever possible so that a good cross-draught of fresh air is produced. Under such conditions of good ventilation, respirators need not necessarily be worn; however, gas detection equipment can be used to ensure that harmful levels of fumigant are not present.

Dosage and Exposure

Dosages of fumigants recommended for the mixing-in-grain technique are included in Schedules A and B. Dosage in fumigation of grain by direct mixing is modified by the kind of grain treated and the gas tightness of the structure. Wind forces, thermal expansion of the internal gas and changes in atmospheric pressure can also influence gas loss from storage structures (Mulhearn et al, 1976).

The dosages in the schedule shown for upright storage units apply to steel or adequately gas tight concrete bins. The rates should be doubled for wooden bins. Unless specifically mentioned in the text or schedules there is no definite exposure period in this type of fumigation. However, the grain should be left undisturbed for at least 72 hours. The usual practice is to leave the grain for a much longer period so that the fumigant vapours are gradually dissipated by leakage from the structure. Fumigants applied and left in this way should not contain ethylene oxide.

The importance of proper aeration of fumigated grain used for seed especially under tropical conditions, is demonstrated by the work of Caswell and Clifford (1958) in Nigeria. An ethylene dichloride and carbon tetrachloride mixture (3:1) was applied to maize in jars, which were immediately sealed with air-tight lids, according to the local custom. Although the actual germination of the seeds was not significantly affected, root and shoot development of young plants was seriously impaired when the maize was kept sealed under fumigation for more than one month.

SURFACE APPLICATION (FLAT STORAGE)

The surface application method has so far been used mainly with liquidtype fumigants. The liquids are sprayed evenly over the top surface of the grain and the vapours slowly evolve and diffuse downward through the bulk. This method is usually employed only when the grain cannot conveniently be turned or as an emergency measure.

Diffusion may be slow and distribution with some fumigants is often not uniform. Carbon tetrachloride has given good distribution in grain in deep bins in the U.K. following a single surface application, and there are a number of standard fumigant mixtures which have been used for this purpose. Less hazardous substitutes for carbon tetrachloride, such as methyl chloroform, may be used for this type of treatment in the future. Unmixed carbon disulphide has been used in many countries, although its tendency to burn or explode is well known. Propylene oxide has been used in France and Algeria. In this type of treatment, the grain is usually not aerated and the vapours remain in the grain until dissipated by leakage.

The fumigants usually recommended for this type of work and suggested rates of application are summarized in Schedules A and B.

The selection of methods of application of fumigants to the surface of stored grain is influenced by the size and type of storage. Methods are therefore discussed under two main headings: large hulk fumigations and small or farmtype storage fumigations. In all storage units with all techniques, the fumigants diffuse more evenly through the moss when the surface of the grain is level. Therefore, if at all possible, every reasonable effort should be made to level the grain surface before the fumigant is applied.

Larqe Bulk Fumigation

The liquid-type fumigants are usually applied to the surface of bulk grain by means of sprayers. If the surface area is large, power sprayers may be used. If possible, application should be made from outside the bin or storage through a manhole, roof hatch, window or door. However, in large Flat storage units it may be necessary for the operator to walk across the surface of the grain as shown in Chapter 3, Figure 9.

In treating large bulks of grain by surface application, extraordinary precautions, over and above those already mentioned, should be taken to protect the operators The men applying the fumigant should wear airline or self-contained oxygen or compressed air respirators.

With all types of sprayer the nozzles are removed to facilitate the rapid application of the liquid to the surface of the grain. for bulks up to 30 000 bushels, a sprayer which delivers the liquid at the rate of 35 to 55 1 (8 to 12 gall) per minute is suitable. This may be effected by using a bronze gear pump operating at about 90 revolutions per minute in conjunction with a 3.5 hp gasoline engine or the power take-off from a tractor. For larger bulks, adequate hose and a pump capable of throwing a stream about 25 m (75 ft) at the rate of 450 1 (100 gall) per minute should be used.

Hazards to personnel applying liquid fumigants in large flat storages may be greatly reduced if the grain is sufficiently level to permit sleds to be drawn across the surface from one end to the other. The spray nozzles may be placed on a spray boom mounted on the sled and adjusted to distribute the required dosage in an even spray on both sides as the sled is pulled across the storage by means of a rope or chain. If the storage space is wide, two or more sleds should be pulled simultaneously across the surface so that the operators can leave the building immediately after the fumigant has been applied.

Methyl bromide

Although methyl bromide is sometimes considered impractical for surface application, when deep penetration of a grain mess is involved, it has been successfully used for such purposes. Ooffe and Nolte (1957) fumigated a large bulk of maize 5 m deep in a flat storage unit measuring 70 x 60 m using gasproof plastic sheets. The fumigant was applied at the rate of 48 9 per m for an exposure of 24 hours in a grain mass where the temperature varied from 11 to 22°C. It was discharged under the gas-proof sheets over the surface of the grain from 64 evenly spaced outlets in polyethylene tubing connected to two 70 kg cylinders of fumigant.

A method for treatment of high vertical bins of grain by applying methyl bromide with carbon dioxide has been developed by Calderon and Carmi (1973) . The carbon dioxide acts as a carrier and will take the methyl bromide down through the grain mass to the bottom of the bin. Carbon dioxide from blocks of dry ice or from pressurized cylinders is applier) at the surface of the grain with the methyl prornide. When the dry ice is used, blocks 1 - 2 kg in size are spread over the surface of the grain and the methyl bromide is released through a garden sprinkler or, preferably, through a spray nozzle that is positioned centrally on the surface of the grain. When carbon dioxide in pressurized cylinders is used it is released simultaneously with the methyl bromide. Special cylinders have been developed to allow sufficiently rapid release of carbon dioxide (2 .6 kg/min) and it is vaporized by passing through a hot water vaporizer. Dosages of 50 g/m³ methyl bromide and 200 - 250 g/m³ carbon dioxide at 20°C and above are used.

It has been found that the downward movement of the carbon dioxide-methyl bromide mixture into the grain may be so rapid in some treatments that the concentration in the upper layers is reduced to give a low c x t product; in such cases the dosage of carbon dioxide should be reduced by 10 - 20 percent. If the bins are properly sealed, the internal pressure may rise 10 15 cm on a water gauge due to expansion of the gases.

This method has been used successfully for ten years as a routine treatment of grain in vertical silos in Israel (Navarro, 1981).

Phosphine

In flat storage units, in which the depth of the grain does not exceed 10 m (about 30 ft), tablets, pellets or sachets containing aluminium phosphide may be used. To simplify application, it is advisable to level the surface of the grain as much as possible before the work is begun.

The fumigant is usually applied by probing into the grain (Figure 40). Probes specially designed for the purpose are used to insert the fumigant into the grain, bet under farm coniditions ordinory 2 .5 cm ( l in ) diameter iron pipe may be used (Watters, 1967). The number of tablets or pellets used per probe is determined by dividing the total amount of fumigant to be used by the number of probings to be made. For large areas of grain surface, a convenient method for measuring the distances for application is with a rope or stout cord, marked at appropriate intervals, stretched from opposite walls. In most storage units where there is considerable air space above the grain bulk, or when it is considered that significant loss of fumigant may occur above the load, it is advisable to c over the entire mass with gas-proof sheets.

Large masses of grain may also be treated by distributing the fumigant over the surface and covering with gas-proof sheets to allow the gas to difuse into the grain. McGregor and White (1969 ) have successfully fumigated stacks of bulk cottonseed 32 m long, 20 m wide and 10 m deer' in this way. Analysis of gas concentrations showed that the phosphine diffused throughout the mass of cottonseed and an appreciable concentration was still present 120 hours after the fumigant was applied. Wainman et al (1974) described the successful fumigation, using pliosphine, of 750 tonnes of wheat in inflatable butyl rubber silos.

Large quantities of grain can also be treated in the holds of cargo ships in an "in-transit" shipboard fumigation procedure. Redlinger et al, (1979) found that good dispersal of the gas and control of insects was obtained when aluminium phosphide tablets were spread on the grain at intervals during the loading operation (i.e. when the hold was 33, 67 and 95 percent full). In these treatments the fumigant is allowed to remain in the grain during the voyage of the ship and until the cargo is removed.

Note. When fumigants are used for treatments on ships the guidelines given by IMCO (1981, or subsequent recommendations) to provide for safety of the ship's crew end longshoremen should be strictly adhered to.

FARM STORAGE FUMIGATION

The gas tightness of the structure is particularly important in small storages, because the mass of grain is not large enough in itself to retain vapours once leakage begins at any point. Steel, concrete or tight wooden structures are usually satisfactory without alterations. For small cracks or openings a caulking gun may be used to apply compounds that will give a semipermanent gas-tight seal. Most wooden storages are leaky and it may be necessary to line the floor and walls on the inside with stout roofing paper or plastic sheeting and to nail boards over any visible openings in the walls. If it is inconvenient to move grain, the paper or plastic sheeting may be applied to the outside of the bin or building, but this is not as effective as an inside lining. If possible, do not fumigate during windy weather because strong air currents hasten leakage.

Experience has shown that results are not usually as good in small bulks of grain as in large bulks. One reason is that there is often a poor kill on the top surface. Also, in small bulks good control is more difficult through the mass in grain that is "tough" or has excessive dockage.

The use of aluminium phosphide tablets has proved effective for the treatment of small storages. See discussion above for details of this method. If aluminium phosphide is used, it is recommended that a tarpaulin or polyethylene sheet be placed carefully over the surface of the grain after the tablets are applied.

The best way to apply a liquid fumigant to small storages is by spraying the surface from the outside of the building with the aid of a stirrup pump. Some liquid fumigants, such as chloropicrin, are supplied in l lb (0.45 kg) cans or bottles. In some applications, it is convenient and satisfactory to puncture the cans or open the bottles, invert them and thrust the opening about 15 cm (6 in) below the surface of the grain. It is recommended that the openings be stuffed with wads of cotton or cellucotton to prevent too rapid loss of the liquid, but loosely enough to produce a wick effect that will allow the liquid to flow gradually into the grain. This method permits accurate and economical distribution of the dosage since the required number of containers may be spaced evenly on top of the grain.

Piles of grain, large or small, may be treated by surface application in any of the ways described above. However, only partial kills may be expected if the grain is not covered with 8 gas-proof sheet either before or immediately offer application of the fumigant. This method should be attempted only in calm weather.

At best, fumigation of piles outdoors is a temporary expedient. If at all possible the grain should be moved into a storage or carrier and treated in a more effective way.

SURFACE INFESTATION

With certain species of insects, such as the Indian meal moth, Plodia interpunctella (Hbn.), infestation may be confined to the top of the grain. This problem cannot be solved by the usual method of surface application of fumigants because the vapours diffuse down through the grain, and it would thus be necessary to treat the whole mass at great expense in order to deal with grain near the surface. Also, turning the grain only spreads the infestation throughout the entire bulk of grain. In silo bins or other storage units, which can be made air tight above the grain surface by closing manholes and other openings, surface infestations can be treated with materials such as dichlorvos to obtain control, particularly infestations of some of the moths, Slow release resin strips that will give off 20 mg dichlorvos per m per week have been found to give satisfactory control of moths in granaries (Schmidt and Wohigemuth, 1979). Surface sprays of dichlorvos may also be used; in this type of application appropriate precautions regarding exposure of personnel should be taken.

For storages with ventilators, where dichlorvos vapour may be lost, an aerosol emission system has been found superior to the slow release strips (Bengston, 1976). Using a dosage of 1 g dichlorvos per 100 m , released at daily intervals, satisfactory control has been obtained in commercial storages in Australia. The safety and reliability of the system were found to be satisfactory.

It should also be pointed out that incipient surface infestations of insects may be arrested by using pyrethrum, malathion or other approved materials applied as a fine mist in the space over grain. Ultra low volume sprayers that produce very fine particles of spray give good results.

"HOT SPOT" FUMIGATION

Treatment of localized areas in a grain mass is often a useful technique for dealing with incipient infestations. These "spots" are usually recognized and defined by a local rise in temperature. Liquid-type fumigants applied through tubes or aluminium phosphide tablets are the best materials to use. In this type of work the tendency is to underdose. Enough fumigant should be applied to maintain the required lethal concentration, not only in the region of infestation, hut also in the margins surrounding it for I or 2 m (3 to 6 ft) in every direction (Note: Results are improved if the marginal applications are made first in a ring surrounding the "hot spots", followed by those applier) to the spot itself. The vapours from the marginal treatments tend to slow down diffusion of the fumigant from the infested spot.) For liquids applied in a flat or farm-type storage, 8 good rule is to use enough to treat the known area and also the grain from the surface to the floor.

Methods of application and dosages are the same as for surface applications.

RECIRCULATION

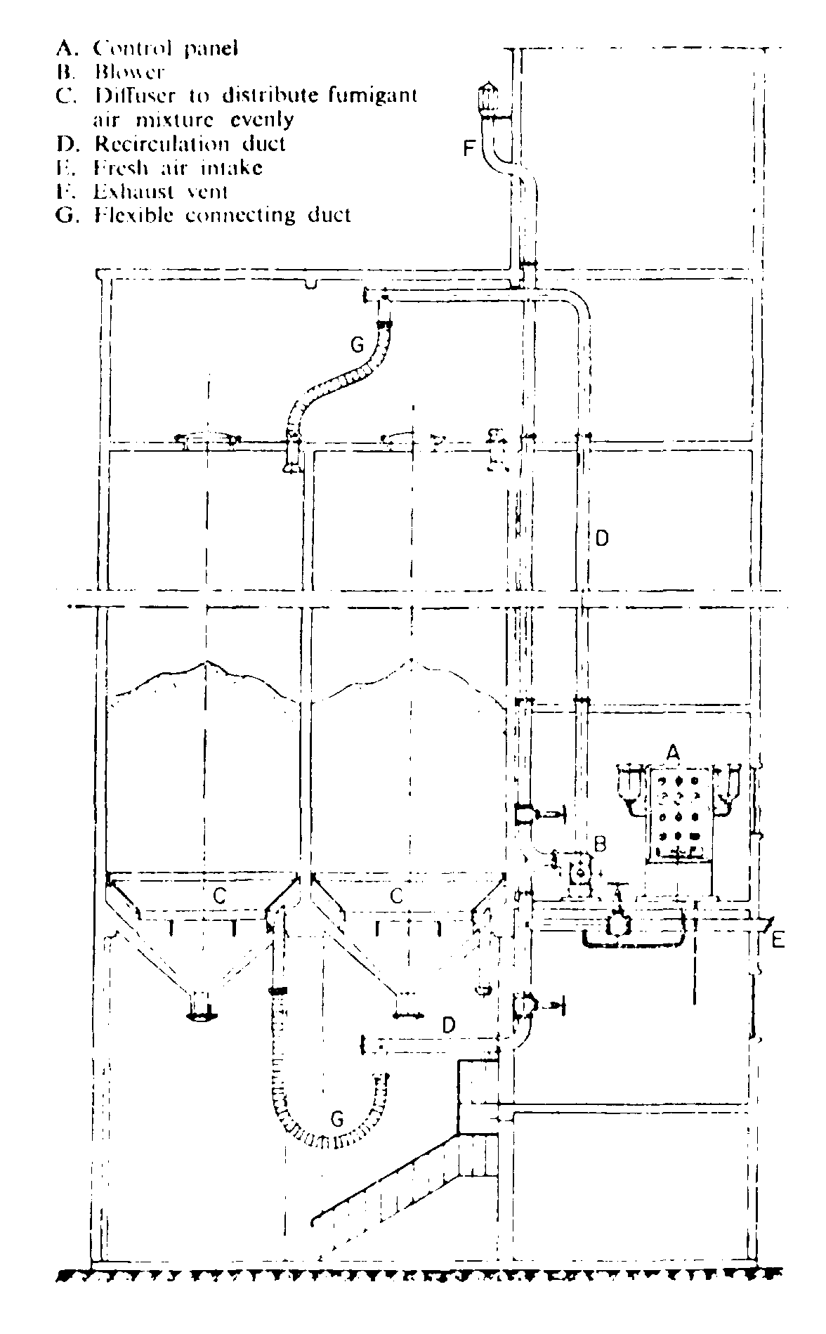
For the treatment of bulk grain, recirculation of the fumigant by means of permanent or temporary installations provides an effective and economical means of insect control. This method was first investigated in Europe in connexion with the development of fixed installations for drying grain in silo bins. Subsequently, it has been widely adopted for use in grain silos and with fixed or temporary drying equipment. One of the more important advantages of the method is that lengthy exposure periods are unnecessary. In addition, distribution of fumigant throughout the grain mass may be improved.

Recirculation is only practicable when the walls of the storage units are sufficiently gas tight to prevent the fumigant/air mixture from being forced out while under positive pressure from the blowers. Many concrete silos may be used without further alteration, but with some it has been found necessary to apply sealers to the inside walls. For this purpose, the best materials are an internal bituminous coating covered by two layers of rubber-based paint.

In addition to its use in permanent installations, recirculation has been successfully improvised as an emergency technique, especially for dealing with problems associated with the long-term storage of crops. Many diverse structures used for grain storage have been fumigated, including oil storage tanks, cargo ships, Quonset huts, cottonseed storage tanks, conventional silo bins and ordinary steel railway cars.

The recirculation method is usually advocated for methyl bromide, hydrogen cyanide or liquid type fumigants but it has not been recommended for phosphine. Because mixtures of phosphine and oxygen may produce explosions at reduced pressures, considerable care has been taken in the past to avoid procedures that might bring about such effects. However, test treatments with phosphine in large grain storages have shown that this fumigant can be dispersed more rapidly and uniformly by a recirculation procedure to give more effective and economic treatment than other methods (Cook, 1980).

The procedures used for recirculation of phosphine are in the developing stages and may be subject to variation and refinement in the future. Possible hazards that may arise in employing this technique are not fully known and require further investigation. As both these procedures and the precautions needed for recirculation of phosphine are somewhat different to those developed for other fumigants, they are outlined separately after discussion of the older established methods.

Fixed Installations

Permanent recirculation systems designed for fumigants other than phosphine and of the type illustrated diagrammatically in Figure 41 are most useful in grain silos at ports or other transfer points where grain is not stored for lengthy periods. The structure and operation of such equipment will not be discussed in detail; this information is furnished by the engineering companies which design the equipment according to the needs of each particular establishment.

Temporary Adaptations

Recirculation methods have been devised for utilizing existing aerating systems in storage units. This is effected simply by providing some means of returning the air which has passed through the grain back into a blower so that continuous circulation is achieved. A similar system for fumigation only may be installed in a storage not already equipped for aeration.

Although the air flow rates in a given aeration system are considerably reduced by the addition of a return duct, the blowers used are adequate to provide the required flow of fumigant/air mixture.

In existing aeration systems, recirculation may be effected in the following ways:

1. By provision of portable flexible tubing which may be connected at the bottom to the aeration duct in the hopper and at the top by means of a specially constructed duct leading through the manhole or other opening into the top of the storage; the portable tubing and upper duct can be moved to any storage bins requiring treatment (Figure 42).

2. Where several adjoining bins are used, a single metal duct can serve as the return and be joined through the top and bottom manifolds to any bin as required.

3. An empty bin can serve as the return duct if suitably connected to an adjoining infested bin; however, use of this may necessitate extra fumigant to maintain full concentration throughout the system.

4. Two filled and infested bins can be connected and treated at the same time, the fumigant being drawn down through one and up through the other.

Where there is no existing aeration system, a perforated plate can replace the gate in the unloading spout, a duct run from this plate to the blower and a duct or flexible tube run to the top of the bin, thus completing the circuit. In that arrangement, the static pressure is likely to be high, but a portable blower of sufficient power can be provided.

The gaseous-type fumigants may be recirculated upward or downward through the grain according to convenience or an existing direction of flow. In practice they are usually released into the system near the blowers.

FIGURE 41. - Permanent installation for fumigation of grain in silos by recirculation.(Societe anonyme Mallet)

Air Flow Requirements

In the design and installation of fumigant recirculating systems, advantage may be taken of knowledge already obtained in the study of the aeration of stored grains. There are four basic factors influencing the design of such systems.

1. A rate of air flow through the grain adequate both for circulation of the fumigant and cooling of the grain is 1 litre of air per minute for each 50 1 of grain (0.025 ft per minute for 1 bushel).

2. The air flow through grains varies according to the species and condition of the grain. Shedd (1953) has published a chart from which the pressure drop per foot depth of various grains may be read in terms of inches of water. These values may be used to calculate the total resistance to air flow of a given depth of grain in storage. When the grain has been stored for some time, it will pack and a "pack factor" is applied to the calculation to allow for this.

3. The ducts offer resistance to air flow. Charts are available in standard heating, ventilating and air-conditioning guides or manuals for calculating the friction loss in ducts for different air flows. Factors are given for calculating additional resistance at elbows in the ducts.

4. It is necessary that particular attention be paid to the provision of a well-designed air distribution system at the bin bottom; otherwise there may be an excessive loss of pressure at this point. Even with satisfactory systems using large distribution cones, antigrading devices or perforated grills, the loss of pressure at the point of entry of the air into the bin bottom may be larger than the fall in the rest of the column of grain. This is due to the high air velocity at this point compared with that higher up in the bin where the flow is more evenly distributed over the crosssection.

With calculations based on these four factors, it is possible to determine the capacity of a blower capable of bringing about the required air flow in a system consisting of a given storage and the ducts attached to it.

The gaseous-type fumigants are best suited for the recirculation technique and are usually discharged into the system just behind the blower. Liquidtype fumigants are not usually recommended in this type of application, except in case of emergency. Liquid types (if used) may be sprayed over the grain surface before the recirculation starts.

Dosages

The rates of application for the fumigants recommended for use with recirculation are given in Schedule A.

Exposure

In the average silo bin, 15 to 20 minutes are required to replace the original air by the fumigant/air mixture. Unless the system leaks, it is advisable to recirculate the gas/air mixture at least two, and preferably four or five times. This will ensure the thorough mixing of air and fumigant in all parts of the grain mass.

At the end of 24 hours (the usual maximum exposure period for this type of treatment), the duct is disconnected from the top of the storage and the blower is operated for at least three hours while the fumigant vapours are driven into the open air above the structure.

Detailed Calculations

Fumigant manufacturers supply booklets and brochures containing detailed information on how to carry out the necessary calculations outlined above, together with recommendations for the types of blowers and other equipment needed.

FORCED DISTRIBUTION

Application of methyl bromide and some of the liquid-type fumigants has been made in storages without modifying existing aeration systems. By operating the blowers, fumigant applied at the top of a storage may be drawn down to the bottom or when introduced at the bottom, may be forced up to the surface. It is necessary to have the means to determine when the gas/air mixture has reached the bottom or top of the mass. This may be done for methyl bromide and liquid-type fumigants containing organic halides with the aid of a thermal conductivity gas analyses, or even with an ordinary halide leak detector. When liquid-type fumigants are used, it has been the practice, especially if a thermal conductivity analyser is available for checking, to force the vapours back to the surface every 24 hours.

With this technique, at the end of the required exposure the residual vapours are partially exhausted into the open air by means of the blowers. However, by the process of desorption, the fumigant concentration may build up in the intergranular air spaces, and exhaustion by blowers may have to be repeated a number of times at intervals of several hours.

Because this method is simple and does not require the extra ducts needed for the recirculation, it appears, superficially, to offer an inexpensive and convenient method of grain fumigation, especially as no modification of existing aeration systems is required. However, it has been found that the method, referred to as "forced distribution", has several disadvantages both in theory and in practice. These are concerned principally with difficulties in obtaining even distribution of the fumigant as compared with the ordinary recirculation technique described above.

When this method is used, dosages are based on those recommeded for recirculation in Schedule A, but it is probable that these would have to be increased by at least 50 percent.

RECIRCULATION PROCEDURES FOR PHOSPHINE

Two procedures have been tested for the recirculation of phosphine in grain storages. The first, which has been successfully used in a number of trials, employs extremely low air flows to give a complete air change within the grain mass in 8 to 12 hours (e.g. approximately two air changes within the 18to 20-hour period required to release phosphine from the tablets). For example, a large tight steel or concrete storage bin would have a small return pipe (ca 150 mm diameter) connected from the top of the bin to the inlet of a 2 hp blower and then to the aeration system at the bottom of the bin for circulation of the fumigant. Aluminium phosphide tablets or pellets at the recommended rate are broadcast over the surface of the grain before the bin is sealed. When the concentration of phosphine in the headspace has reached 300 - 600 ppm, the blower is activated to circulate the gas through the grain mass. Concentrations of 320 - 340 ppm have been found dispersed throughout the entire grain mass within 12 hours of the first day of treatment with this technique. The blower should be run for 24 to 30 hours, with the fumigation continuing for at least three days and preferably for five days. Using this method, it is claimed that the dosage of fumigant can be reduced and the exposure time shortened substantially (Cook, 1980).

The second method, which has been developed only recently, uses a probe inserted in the grain to carry the fumigant down and through the grain mass. A small aluminium probe, perforated with 3 mm holes in the lower 4.5 m, is pneumatically drilled into the grain and a small high speed blower fixed at the top to carry the fumigant-air mixture down through the probe. The fumigant-air mixture brought in from the headspace over the grain is introduced on the suction side of the blower and is blown down the probe to disperse laterally and displace the intergranular air in the grain. With this method the fumigant was found to radiate out from the probe at a relatively uniform concentration in a 3 350 tonne bin of grain in 24 hours of blower time (Cook, 1980).

GENERAL SAFETY PRECAUTIONS

The application of fumigants to large masses of grain in various types of structures and storage units involves the dispensing of considerable amounts of fumigant. Under these conditions, safety measures are of prime importance, not only to protect the operators, but also those working in the vicinity. It is also necessary to ensure that all fumigated grain is thoroughly aerated before it is released to customers or consumers. It is therefore considered advisable to recapitulate the precautions required.

Operators. Only fully trained and qualified operators should be entrusted with the fumigation of grain in commercial storage units and installations. Most countries have national or local regulations covering the licensing of operators. Some manufacturers require that persons using their products receive the required training and they provide facilities for this. Such stipulations often do not apply to the use of fumigants at farm level. These are usually small-scale treatments and are often carried out by the farmers themselves; however, adequate instructions on both methods of application and precaution should be given.

Application. The operators must be fully protected at the time of application. This is especially important in connexion with liquid-type fumigants. Proper ventilation of the working space where the materials are being applied is most necessary.

Other persons working in the vicinity must be warned that a fumigation is in progress. Appropriate warning signs should be posted wherever necessary.

Recirculation and forced distribution. While circulation and distribution of the fumigant are being undertaken, persons working in the building or in adjoining ones must know that these operations are in progress and take the necessary precautions to protect themselves.

Careful checks should be made of all recirculation equipment, fixed or temporary, to ensure that there is no significant leakage of the fumigant from any part.

SAFETY PRECAUTIONS FOR PHOSPHINE

In addition to the general precautions necessary for all fumigants, special care should be exercised with phosphine to avoid subjecting it to any condition that might produce fire or explosion. It must be stressed that this fumigant can be employed safely under normal conditions of fumigating without undue hazards; fire or explosions are not likely to be produced in conditions normally recommended in fumigation procedures. However, phosphine will react with oxygen to produce Flame or explosion at high concentrations and also over a range of low pressures.

The spontanteous flammability of phosphine is well known. Commercial formulations are designed to release the gas slowly so that the concentration remains well below the flammability level. However, manufac turers advocate caution against any practice that will cause rapid release or allow high concentrations of phosphine to build up.

1. Formulations should never be allowed to come in direct contact with any liquid, particularly water, as this may cause rapid release of the gas.

2. No formulation should be used under any condition which will allow the gas concentration to reach the lower level of flammability (1.79 percent by volume). It should never be confined in small gas-proof enclosures, such as plastic bags, nor should it be packed in envelopes or dumped in piles where excessive levels of the gas could build up.

In addition to flammability at 1.79 percent, phosphine can react with oxygen to produce an explosion at lower concentrations if it is subjected to reduced pressures. In carefully controlled experiments with pure materials and very low pressures, phosphine has been found to combine with oxygen in an explosive chain reaction (Dalton and Hinshelwood, 1929). This reaction is promoted by other gases, including nitrogen and carbon dioxide, but it seems to be reduced by moisture.

The possible significance of this reaction to the use of phosphine in recirculation systems is not known at this time. Experimental evidence suggests that the reaction occurs at pressures well below those expected in commercial recirculation systems. however, until all of the conditions that will promote the reaction are known, great care should be taken in any treatment where phosphine might be exposed to pressure changes. Further research and development on all aspects of the procedures, including investigations on the conditions produced in recirculation systems (e.g. pressure changes, the presence of dust and other gases, etc.) are needed before it can be generally recommended.

AERATION

Aeration procedures vary according to the fumigants used and the type of installation.

Methyl bromide, chloropicrin and hydrogen cyanide should not be kept in the grain beyond the prescribed exposure periods. It is also not usually recommended that aluminium phosphide be left on the grain beyond normally recommended exposure times. Exposure periods for all grain fumigations are given in Schedules A and B.

Liquid-type fumigants containing ethylene dibromide, ethylene dichloride and carbon disulphide in admixture with carbon tetrachloride or chloroform are often left on the grain until the normal turning procedure is undertaken. The vapours tend to dissipate gradually during this process.

After completion of the required exposure period in ordinary-type silos and elevator bins, the grain is turned onto the belts and elevators and transferred to a new bin. In recirculation and forced distribution systems, fixed or temporary valves are opened or ducts disconnected, at the top of the silo bins and the blowers are operated for 3 to 4 hours to blow fresh air into the grain and thus ventilate the fumigant from the mass. In all these aeration procedures precautions must be taken to protect people in the vicinity so that they are not exposed to the fumes as they are being exhausted.

On the completion of treatment of smaller amounts of grain, such as in farm storage units or under sheets, no elaborate procedures are required. It is usually only necessry to allow fresh air to gain access through all available openings and to allow this aeration to continue until the residual vapours have completely dissipated. Residues of aluminium phosphide will sooner or later be removed from the grain by turning.

Special care should be taken to ensure that adults, children and animals are not exposed in any way during this time.

When any of the above aeration procedures are satisfactorily completed, at least 24 hours should elapse before the grain is released to consumers or processors. At temperatures below 15°C, longer waiting periods should be enforced to ensure that the final small amounts of residual vapours have been dissipated.


Contents - Previous - Next